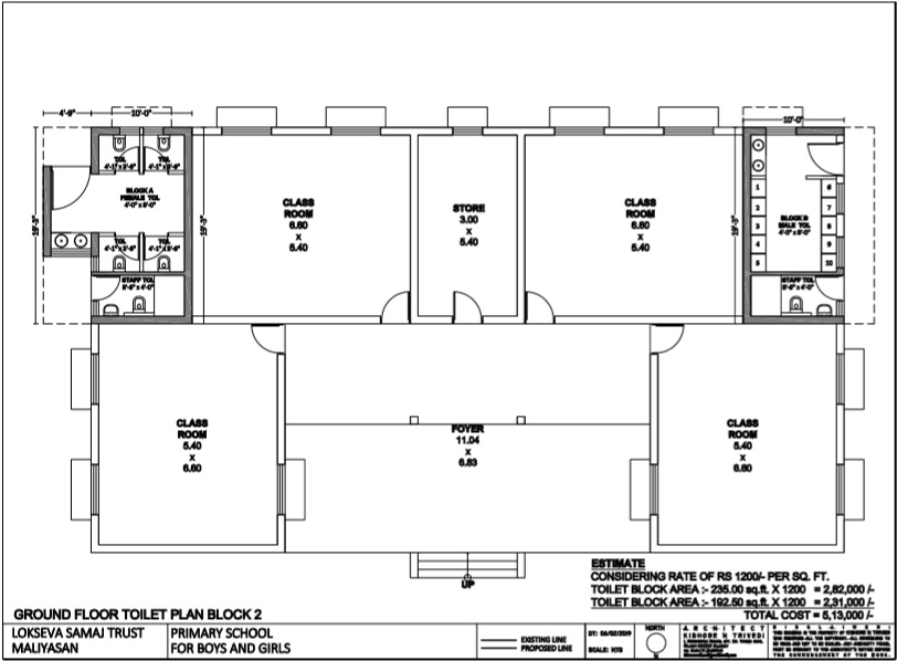
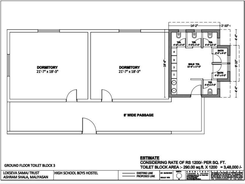
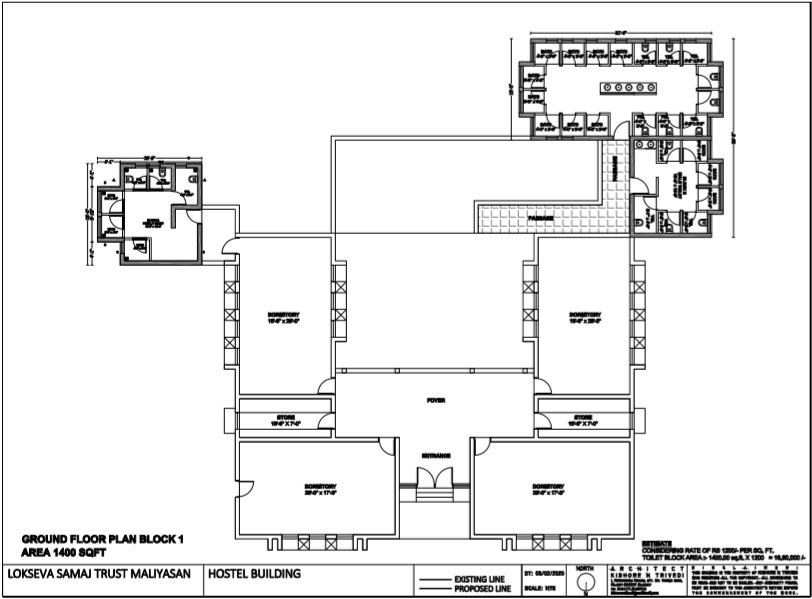
Toilet design for school

We have got designs for upgrading the toilets at our schools. We are planning to make these facilities better for use for all children and staff.